GU Ferco Latch 2 Rollers Multipoint Door Lock
This GU Ferco Standard Ferco multipoint door lock features 2 Rollers & 1 Latch.
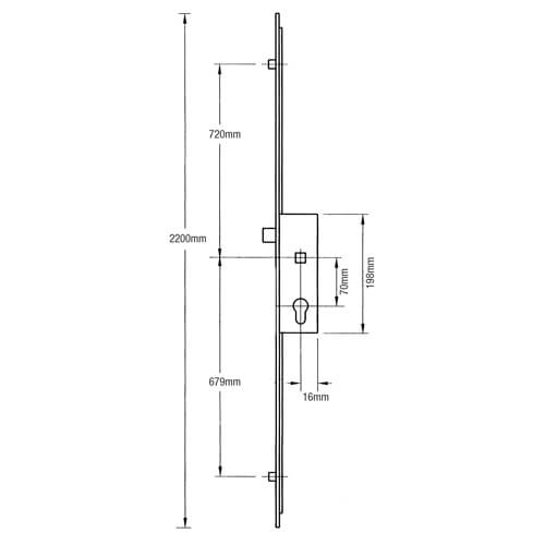
Ferco locks are part of the GU group of companies. They are fairly unique as they feature 70mm centres (PZ) and can therefore be easily identified.
The standard Ferco UPVC door lock features a latch only, without a deadbolt in the central gearbox, with 2 or 4 rollers. While they are high quality, they offer low security by modern standards and new doors are no longer manufactured with these locks. Nevertheless, they have been fitted to thousands of doors over the years and there is a substantial replacement requirement.
Ferco gearboxes feature a latch only, making them fairly unique in the market. Another unique element is the PZ measurement of only 70mm.
The spindle is solid, with a standard lift lever function. However, the spindle is only 7mm, compared with standard locks at 8mm. 70mm PZ handles will be supplied with a 7mm spindle to suit these locks, but its important to be aware of this difference.
Gearboxes measure 198mm high x backset + 15mm wide.
Rollers are used for compression, to pull the door against the frame, to help prevent dust or water ingress. They do little for security, but they also have the added benefit of helping to prevent the door from becoming warped as it is supported across its full height. This is dependent on the rollers being engaged into their keeps.
Rollers are normally adjustable by +/- 1mm to help achieve optimum weather sealing.
Operation: Lift Lever
To lock the door
1. Lift the handle upwards to engage the locking points.
2. Lock the locking points and main deadbolt (if present) by turning the key.
To unlock the door
1. Unlock the system by turning the key.
2. Push the handle downwards to disengage the locking points and retract the latch.
We stock a range of associated products for GU Ferco Standard multipoint door locks, including keeps, spindles, handles and accessories.
You may find this lock used as an UPVC door lock or an aluminium door lock.
| discontinued | 29402 |
|---|---|
| Backset | 28840, 29886, 28mm, 35mm |
| centres-pz | 30740 |
| Faceplate | 28842, Flat 16mm – Square Ends |
| Spindle Size | 29958 |
| rollers | 29739 |
| latch | 29404 |
| main-gearbox | 29766 |
| Operation | 29767, Lift Lever |
| shootbolt-attachments | 29768 |
| spindle | 30741, single-7mm |
| 1-2-or-3-piece | 28849 |
| Handing | 28834 |
| Distance Between Inner Locking Points | 1399mm |
| height | 30399 |
| top-roller-to-spindle | 31025 |
| bottom-roller-to-spindle | 31026 |

























Reviews
There are no reviews yet.